服務熱線:13880667850


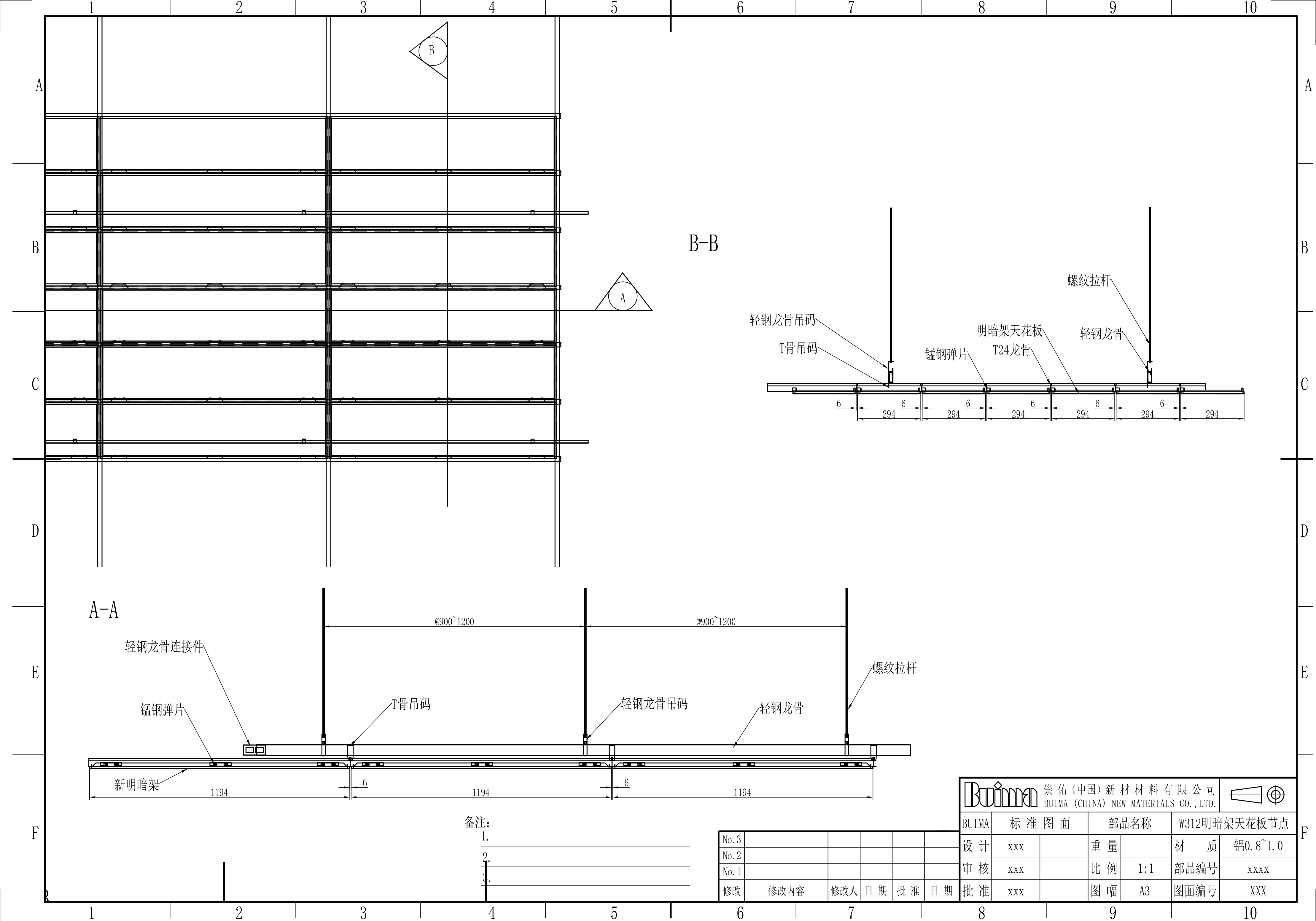
崇佑(中國)的這款明暗架天花系統(tǒng)的板面可采用鋼制天花板也可采用鋁制天花板,可以根據設計師對空間不同的述求進行選擇。如需防火時效,則采用鋼制天花板;如需輕便且對防火要求不高,則采用鋁制天花板。這個明暗架系統(tǒng)天花可以做組合式天花吊頂系統(tǒng)的結構,可以通過300*300(mm)、300*1200(mm)、400*1200(mm)、600*1200(mm)、1200*1200(mm)這些尺寸,來滿足設計師對空間不同功能區(qū)的劃分。再者,這款天花系統(tǒng),采用了明架系統(tǒng)的優(yōu)勢,就是龍骨系統(tǒng)本身是抗震防火龍骨,可以廣泛應用于地震帶項目或者對防火時效有要求的場所;另外又結合了暗架系統(tǒng)的優(yōu)勢,便利拆卸安裝且自帶防風結構,這樣就不會存在因為空間氣流問題而突然被掀翻的天花板砸到人的問題。














